0
Retour

Décines-Charpieu (69150)
DECINES CHARPIEU proche village T3 en Rez de Jardin

  • à propos de ce
    bien

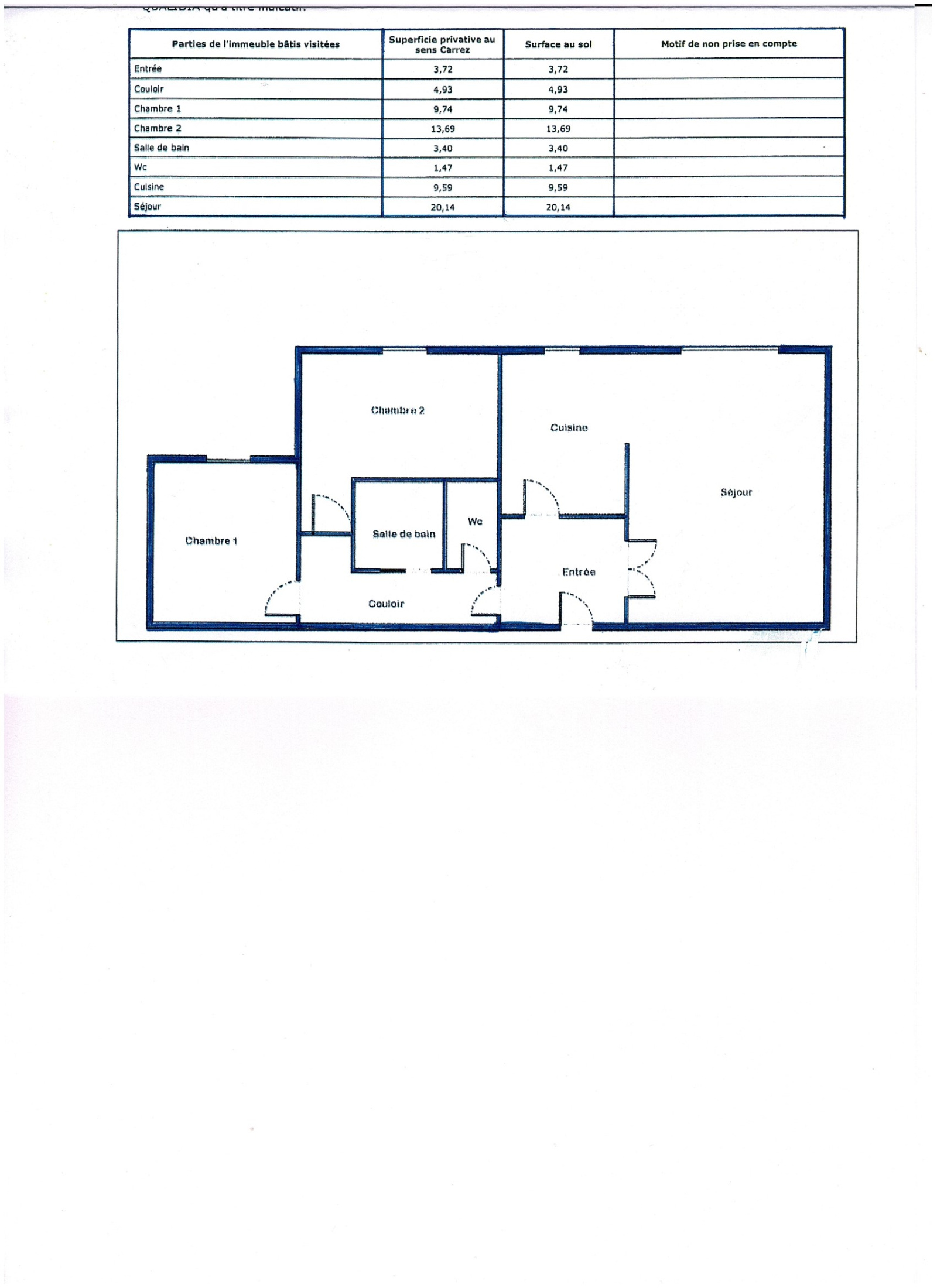
    DECINES CHARPIEU VILLAGE l'Agence AIPC2 vous propose un T3 en rez de jardin pour une surface de 67 m² + terrain terrasse offrant 100 m² de verdure très bien orienté car Sud Ouest, une pièce de vie de 30 m² avec une cuisine ouverte équipée comprenant l' électro ménager, accès sur la terrasse des 2 pièces, 2 chambres avec parquet, sdb douche spacieuse, porte blindée, chauffage central individuel gaz, fenetre alu double vitrage, cave, possibilité garage de 23 m² en plus , proche commerces, écoles

    • Prix
      215 000 €
    • Code postal
      69150
    • Surface habitable (m²)
      66,70 m²
    • Nombre de chambre(s)
      2
    • Nombre de pièces
      3
    • Références
      98761
  • Plus d'informations
    financières

    • Prix de vente
      215 000 €
    • Les honoraires d'agence seront intégralement à la charge du vendeur
       
    • Charges
      1 560 €
    • Taxe foncière annuelle
      1 113 €
  • Plus de
    détails

    • Nb de salle de bains
      1
    • Nombre de garage
      1
    • Exposition
      Sud-Ouest
  • la
    copropriété

    • Copropriété
      OUI
    • Quote Part annuelle des charges
      1 560 €
    • plan de sauvegarde
      NON
  • Plus d'informations sur
    le quartier

    • Commerces et santé
    • Loisirs
    • Ecoles
    • Transports
    • Pratique
  • Bilan
    énergétique

    DPE GES
    DPE ANCIENNE VERSION

Ce bien
m'intéresse

Nos outils