0
Retour

Bron (69500)
BRON APPARTEMENT T3

  • à propos de ce
    bien

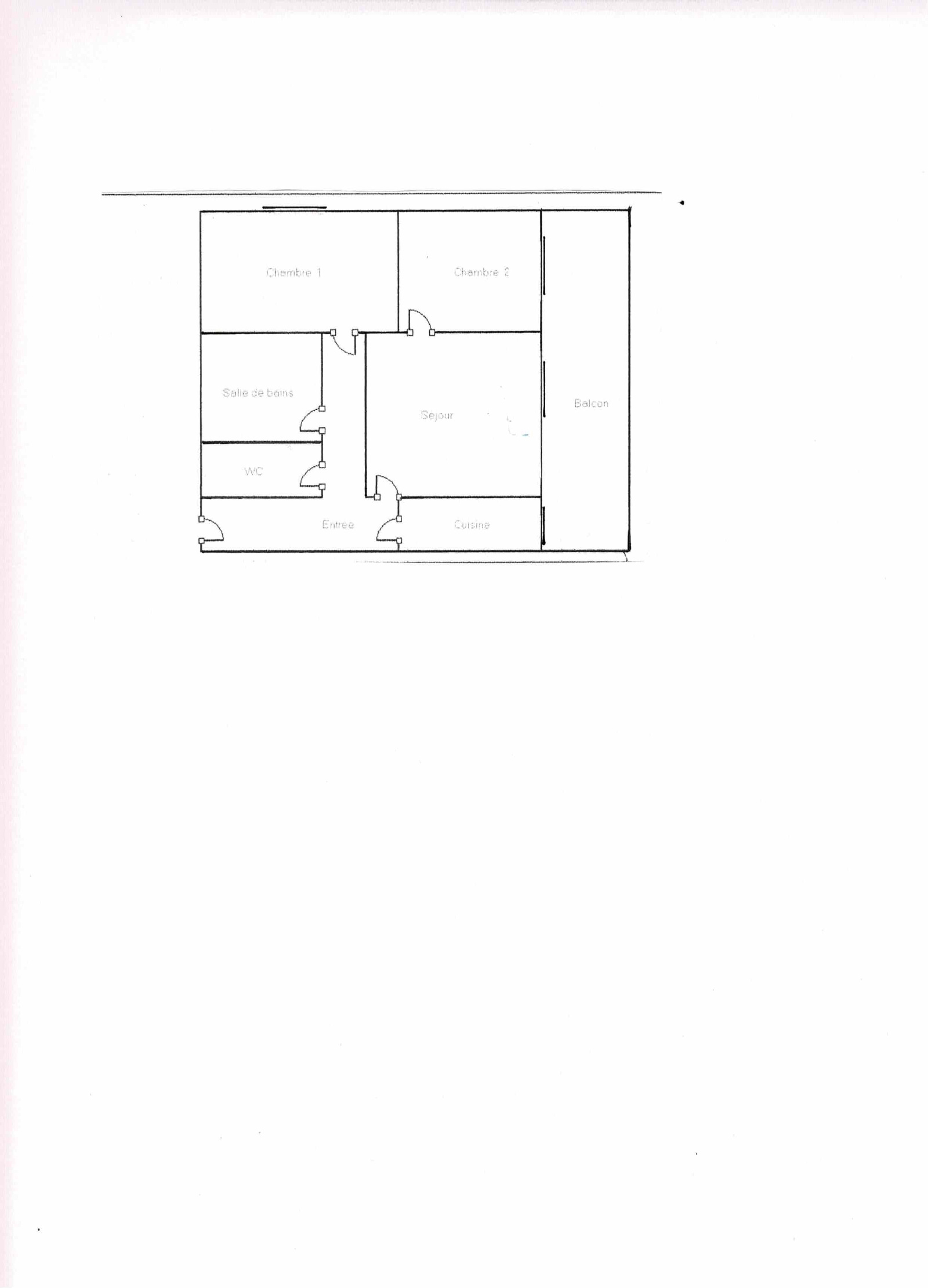
    BRON l' Agence AIPC2 vous propose un appartement T3 de 55 m² au dernier étage avec ascenseur 8/8 dans copropriété fermée le Constellation.

    Séjour parquet et accès sur balcon, cuisine fermée accès balcon possibilité ouverture sur séjour

    2 chambres avec parquet, sdb et wc indépendant, hall d'entrée avec placard penderie

    Cave, chauffage collectif , eau chaude individuel gaz

    Appartement à rafraichir , vue sur jardin

    • Prix
      135 000 €
    • Code postal
      69500
    • Surface habitable (m²)
      54,57 m²
    • Surface loi Carrez (m²)
      54,57 m²
    • Nombre de chambre(s)
      2
    • Nombre de pièces
      3
    • Etage
      8
    • Ascenseur
      OUI
    • Vue
      JARDIN
    • Références
      3213
  • Plus d'informations
    financières

    • Prix de vente
      135 000 €
    • Les honoraires d'agence seront intégralement à la charge du vendeur
       
    • Charges
      1 900 €
  • Plus de
    détails

    • Nb de salle de bains
      1
    • Cuisine
      Séparée
    • Mode de chauffage
      Gaz
    • Type de chauffage
      Au sol
    • Format de chauffage
      Collectif
    • Balcon
      OUI
    • Cave
      OUI
    • Exposition
      Est
    • Année de construction
      1970
    • Quartier
      pagere terraillon
  • la
    copropriété

    • Copropriété
      OUI
    • Quote Part annuelle des charges
      1 900 €
    • plan de sauvegarde
      NON
  • Plus d'informations sur
    le quartier

    • Commerces et santé
    • Loisirs
    • Ecoles
    • Transports
    • Pratique
  • Bilan
    énergétique

    DPE GES
    DPE ANCIENNE VERSION
    Exclusif
    Nouveauté

Ce bien
m'intéresse

Nos outils