0
Retour

Vienne (38200)
VIENNE CENTRE APPARTEMENT T2

  • à propos de ce
    bien

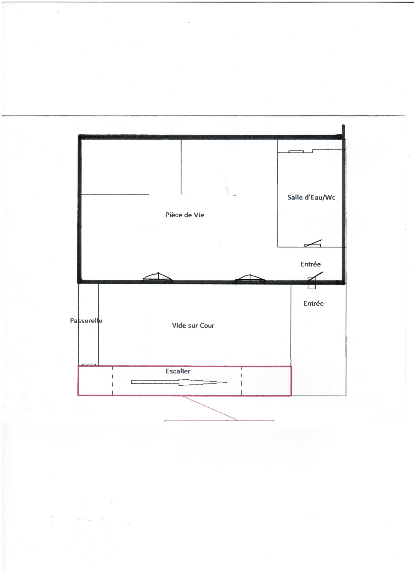
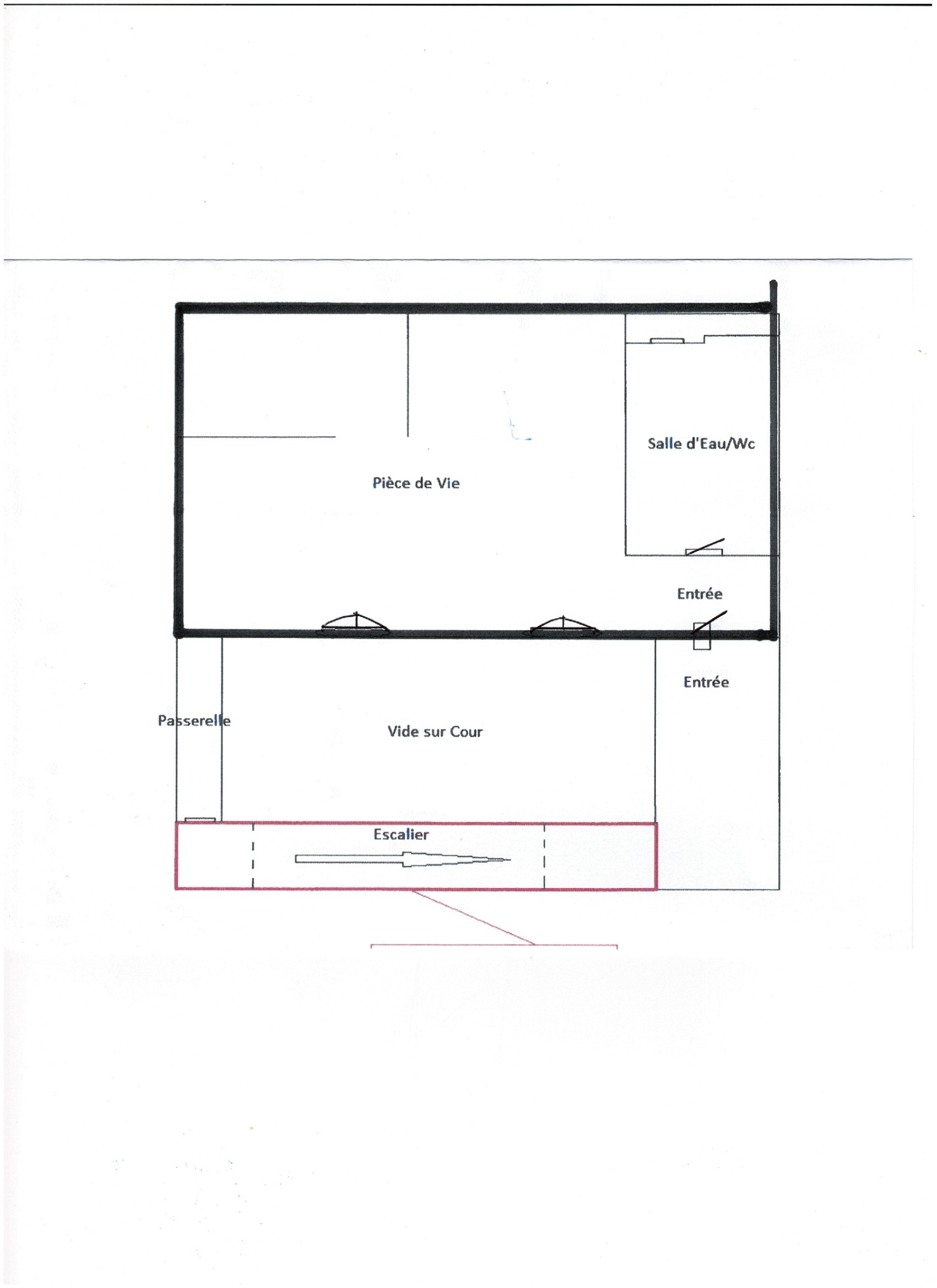
    PLEIN CENTRE DE VIENNE avec tous les commerces au pied de l'immeuble, Appartement T2 de 35 m² au premier étage, beaucoup de cachet, poutre à la française, immeuble classé, grand séjour pièce de vie, coin cuisine, sdb douche, premier étage, idéal pour location ou preier achat .

    • Prix
      90 000 €
    • Code postal
      38200
    • Surface habitable (m²)
      35,40 m²
    • Surface loi Carrez (m²)
      35 m²
    • Nombre de chambre(s)
      1
    • Nombre de pièces
      2
    • Etage
      1
    • Vue
      COUR
    • Références
      V12
  • Plus d'informations
    financières

    • Prix de vente
      90 000 €
    • Les honoraires d'agence seront intégralement à la charge du vendeur
       
    • Charges
      500 €
  • Plus de
    détails

    • Nb de salle d'eau
      1
    • Mode de chauffage
      Electrique
    • Type de chauffage
      Convecteur
    • Format de chauffage
      Individuel
    • Balcon
      NON
    • Terrasse
      NON
    • Cave
      NON
    • Année de construction
      1800
  • la
    copropriété

    • Copropriété
      OUI
    • Quote Part annuelle des charges
      500 €
    • plan de sauvegarde
      NON
    • statut du syndic
      pas de procédure en cours
  • Plus d'informations sur
    le quartier

    • Commerces et santé
    • Loisirs
    • Ecoles
    • Transports
    • Pratique
  • Bilan
    énergétique

    DPE GES

    Montant estimé des dépenses annuelles d'énergie de ce logement pour un usage standard est compris entre 670 € et 930 € . 2021 étant l'année de référence des prix de l'énergie utilisés pour établir cette estimation.

Ce bien
m'intéresse

Nos outils