0
Retour

Bron (69500)
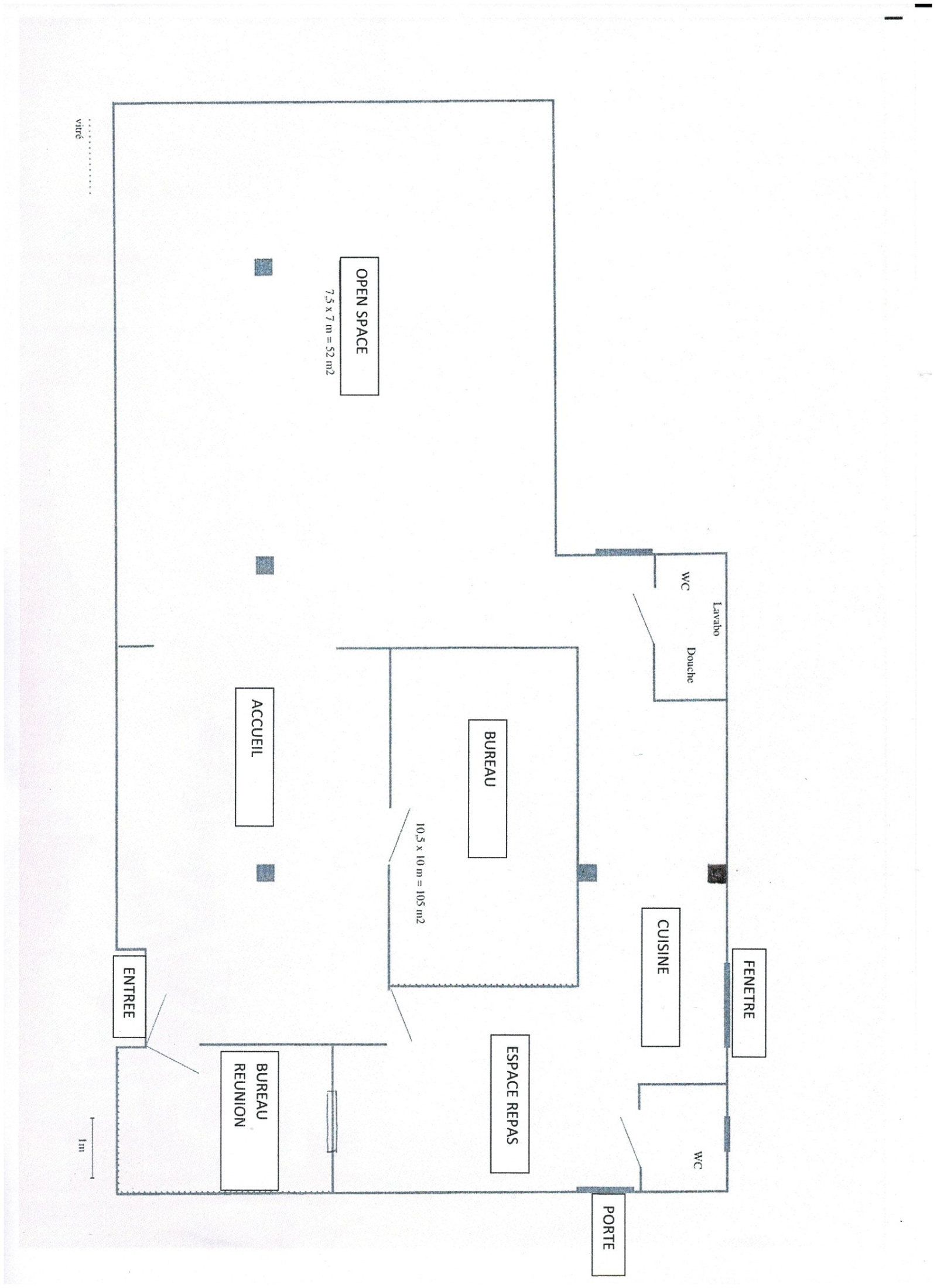
BRON LOCAL COMMERCIAL OU BUREAU 145 m²

  • à propos de ce
    bien

    L'Agence AIPC2 vous propose les murs d'un local commercial d'une surface de 145 m² de plein pied, possibilité et idéal pour bureaux ou profession médicale, divisible facilement, climatisation , chauffage collectif, grande vitrine , sanitaire douche et wc, cuisine, proche tramway et commerces, accès facile , parking commun + un parking dirigant ,

    • Prix
      395 200 €
    • Type de transac
      Local commercial
    • Code postal
      69500
    • Surface habitable (m²)
      145 m²
    • Superficie (m²)
      145
    • Références
      121212
  • Plus d'informations
    financières

    • Prix de vente honoraires inclus
      395 200 €
    • Les honoraires d'agence seront intégralement à la charge du vendeur
       
    • Charges
      400 €
    • Chiffre d'affaires
    • EBE
  • Plus de
    détails

    • Quartier
      CENTRE
  • Plus d'informations sur
    le quartier

    • Commerces et santé
    • Loisirs
    • Ecoles
    • Transports
    • Pratique
  • Bilan
    énergétique

    DPE GES
    DPE ANCIENNE VERSION

Ce bien
m'intéresse

Nos outils