0
Retour

Saint-Bonnet-de-Mure (69720)
ST BONNET DE MURE CENTRE

  • à propos de ce
    bien

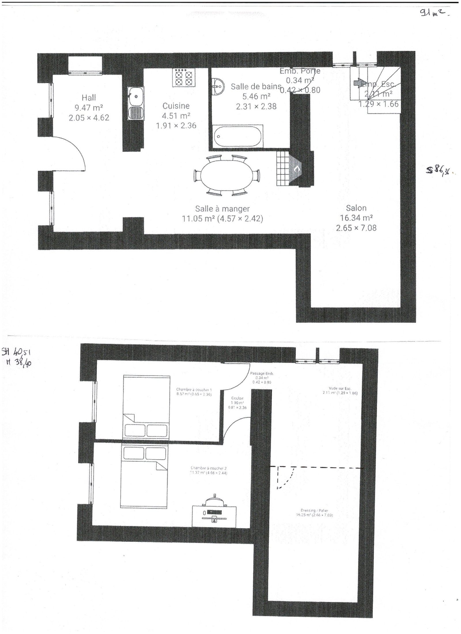
    ST BONNET DE MURE proche du centre, l'Agence AIPC2 BRON vous propose en Exclusivité une maison de ville de 90 m² individuelle,

    Au rdc : une cuisine meublée avec SAM + salon, hall d'entrée bureau avec rangements, sdb baignoire,

    A l'étage : 2 OU 3 chambres de bonne dimension

    Terrasse de 25 m²

    Pour le prix d'un appartement vous avez une maison .

    • Prix
      170 000 €
    • Code postal
      69720
    • Surface habitable (m²)
      90 m²
    • Surface loi Carrez (m²)
      90 m²
    • Nombre de chambre(s)
      3
    • Nombre de pièces
      4
    • Nombre de niveaux
      1
    • Références
      21121
  • Plus d'informations
    financières

    • Prix de vente
      170 000 €
    • Les honoraires d'agence seront intégralement à la charge du vendeur
       
  • Plus de
    détails

    • Nb de salle de bains
      1
    • Cuisine
      Américaine
    • Type de cuisine
      SEMI-EQUIPEE
    • Murs mitoyens
      1
    • Exposition
      Nord-Est
    • Année de construction
      1900
  • la
    copropriété

    • Copropriété
      NON
  • Plus d'informations sur
    le quartier

    • Commerces et santé
    • Loisirs
    • Ecoles
    • Transports
    • Pratique
  • Bilan
    énergétique

    DPE GES
    DPE ANCIENNE VERSION
    Exclusif
    Coup de coeur

Ce bien
m'intéresse

Nos outils